Dieses großzügiges Anwesen bietet Ihnen Wohnkomfort und flexible Nutzungsmöglichkeiten. Das Objekt wurde im Jahre 1978 erbaut und befindet sich in bester Lage von Forchheim-Reuth mit traumhafter Aussicht Richtung Walberla. Die Immobilie befindet sich in Hanglage auf einem uneinsehbaren Grundstück über 987 m².
Dank der durchdachten Raumaufteilung kann die Immobilie sowohl als Einfamilienhaus als auch als Zweifamilienhaus genutzt werden. Zudem bietet sie ideale Voraussetzungen für Wohnen und Arbeiten unter einem Dach.
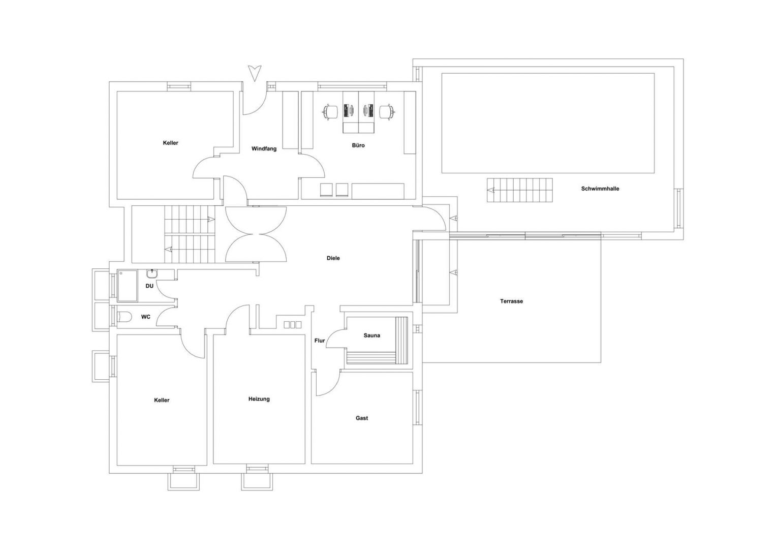
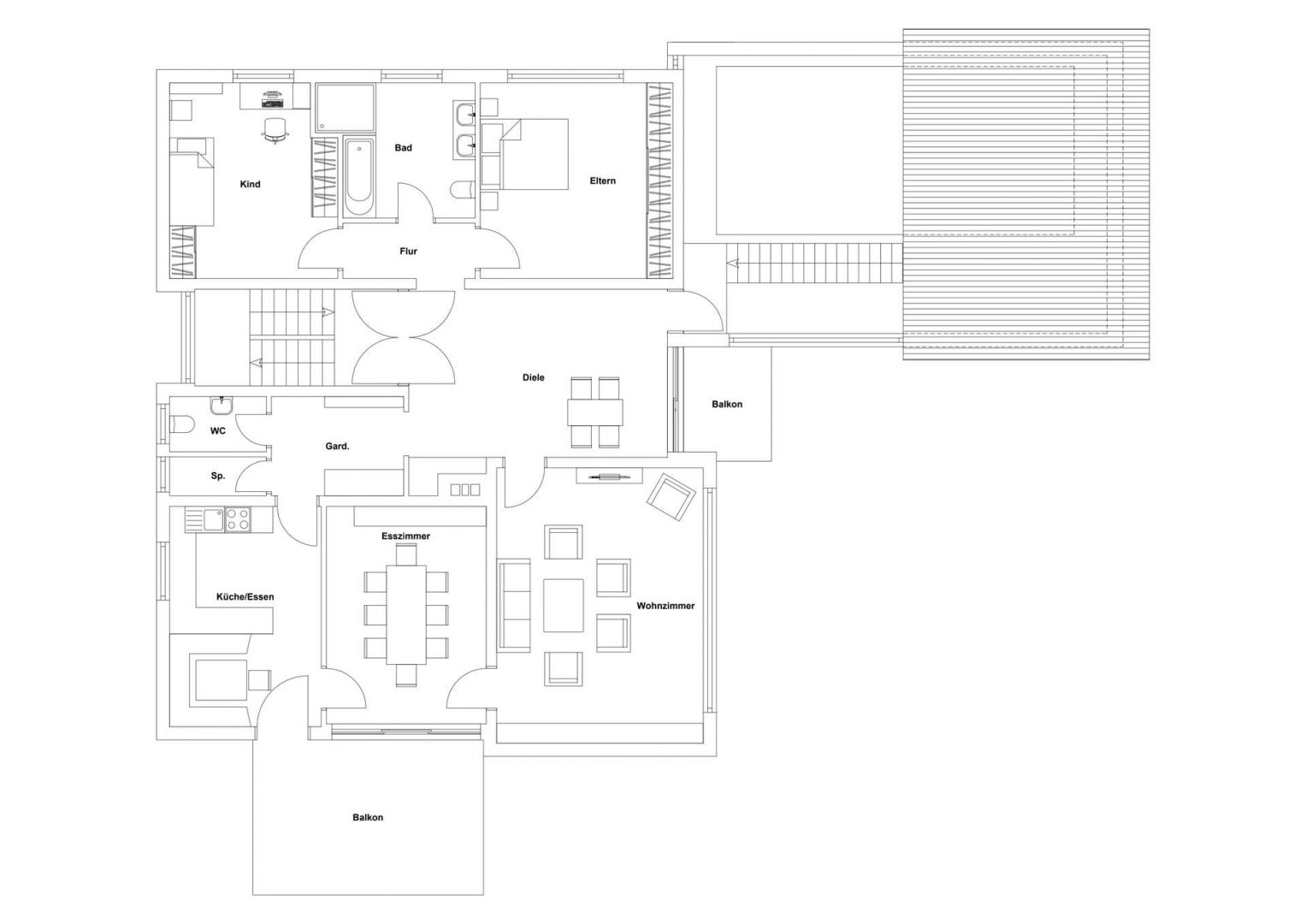
Mit einer Wohnfläche von über 280 m² und einer Nutzfläche von ca. 64 m² erstreckt sich das Haus über drei Etagen.
Weitere Bilder zum Objekt und Grundrisse finden Sie unter www.susannenoeth.de.
Für ein ausführliches Exposé schreiben Sie uns gerne eine Anfrage!
Der neu angelegte Garten rund um das Haus gewährt eine private Atmosphäre unter blühenden Büschen und Bäumen. Ein Schwimmbad und eine Sauna laden zu entspannten Stunden ein.
Eine Doppelgarage und zwei zusätzliche Stellplätze davor bieten ausreichend Parkmöglichkeiten.
Dieses Einfamilienhaus mit möglicher Nutzung einer Einliegerwohnung im Dachgeschoss vereint Komfort, Stil und flexible Nutzungsmöglichkeiten. Es bietet Ihnen und Ihrer Familie einen idealen Rückzugsort mit zahlreichen Extras, die den Wohnwert noch weiter steigern. Verleihen Sie dem bestehenden Haus durch die ein oder andere Sanierung neuen Glanz.
Die Bilder wurden teilweise zur besseren Veranschaulichung durch KI generiert.
Lassen Sie sich von der attraktiven Lage überzeugen und vereinbaren Sie noch heute einen Besichtigungstermin!












































