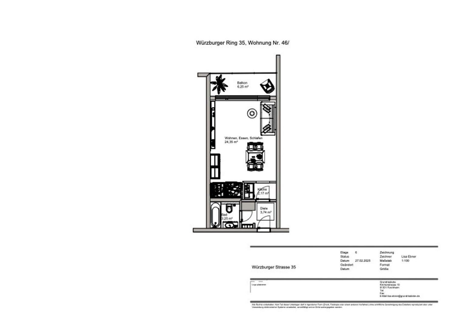
Eine ruhige Lage und ein schöner Grundriss prägen diese 1 Zimmer-Wohnung in Erlangen Büchenbach. Die Wohnung befindet sich im 6. Stock die über einen Aufzug bequem zu erreichen ist. Der Gebäudeteil besteht aus 81 Einheiten und stammt aus dem Jahr 1973. In der Wohnung kann man handwerkliches Geschick beweisen und die Wohnung nach eigenen Wünschen renovieren.
Das Raumangebot umfasst ein Zimmer mit kleiner Nische, zum möglichen abtrennen für ein Bett, eine Pantry-Küche (erneuerungsbedürftig) und ein innenliegendes Badezimmer. Das Highlight ist eine geschützte Loggia, die mit Süd-Ausrichtung und Blick in den grünen Garten begeistert. Heller Vinylboden, Heizkörper und eine bereits vorhandene Party Küche schaffen ein einladendes Wohnumfeld. Ein Kellerraum, ein Fahrradkeller und eine Waschküche komplettieren diese Immobilie.
Die Wohnung steht bereits leer und kann sofort genutzt werden. Die potentielle Kaltmiete im aktuellen Zustand beträgt 400 EUR/Monat. Der Erbbauzins beträgt 490EUR/Jahr, die Restlaufzeit beträgt 46Jahre. Weitere Informationen hierzu erhalten Sie auf Anfrage oder unter www.susannenoeth.de.














